martes, 22 de septiembre de 2015

Autocad: Como imprimir correctamente en escala - Layout o Presentación

COMO IMPRIMIR EN AUTOCAD en ESCALA y PDF: 

PLOT, MVIEW, LTSCALE, PSLTSCALE


Pareciera ser que cuando empezas a dibujar en autocad, más o menos le agarras la mano pero para imprimir es algo que no está muy bien explicado, o quizas cuesta entender. Bueno, yo te explico la forma en la que yo imprimo siempre, y como hago para no equivocarme nunca en la escala.  Además algunas cosas utiles para utilizar el Layout y presentación.  

La manera que tengo yo de imprimir y dibujar quizas no es lo que más se suele ver en la facultad. Pero es la que a mi más me conviene, y me parece más comoda.

En una sintesis lo que yo hago es Preparar todo lo que quiero imprimir en PDFs listos para imprimir y en escala de esta forma no hay posibilidades de errores ni de CTB, ni de escala ni de colores de lineas, etc...

Empezas un dibujo nuevo, y te dicen que le cambies las unidades a Metros,

Con el comando UNITS la podes cambiar:
Esto no importa tanto en realidad, de la forma que vamos a imprimir las unidades las vamos a asignar despuès a la hora de imprimir.

Bueno, tenemos nuestro plano:
En este caso una estacion de servicio, y yo lo quiero llevar a imprimir en una A3 por ejemplo.

Creo un nuevo layout, o presentacion y la selecciono.
Va a ser algo mas o menos asi:

Ahora esto no nos sirve, tenemos que borrar el viewport que viene por defecto. 
Abajo nos cercioramos que este seleccionado en Paper sobre la barra gris abajo a la derecha
Seleccionamos el viewport, y lo borramos, nos va a auqedar la hoja en blanco.
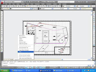
Despuès de eso hacemos click derecho en la solapa Layout y vamos a Page Setup Manager, Aca es donde vamos a elegir la hoja, escala y ctb:

Le damos modify:

Y nos aparece lo siguiente: 


Para escalar facilmente nuestro dibujo vamos a poner que 1000mm es igual a una unidad!  
Entonces de esta manera una unidad de nuestro dibujo equivale a un metro, es por esto que las unidades de UNITS no importa, porque a la hora de plotear esto es lo que manda como se escala el dibujo.
En este cuadro tambien tenemos para elegir la impresora, que ahi vamos a elegir DWG to PDF,
y tenemos para elegir CTB si ustedes tienen, 
tambien esta para elegir el tipo de HOJA, que yo voy a elegir FULL bleed A3, que es una a3 con margenes chicos,
Tienen para elegir tambien si la hoja va apaisada o vertical.  
Asi quedo despues:

En este caso yo quiero que la planta salga en grande y en una esquina el detalle axonometrico de un lugar.
Voy a dibujar en el espacio PAPER una polilinea para generar unos recuadros:



En el espacio papel ustedes dibujan un recuadro, o lo que sea que quieran que este en la hoja, puede ser un rotulo de la empresa, de la facultad etc. Lo bueno de esto es que si tienen un mismo rotulo para varios planos con solo mover el viewport imprimen los pdfs muy rapido. 

Ahora hay que crear los viewports. Con el comando MVIEW generas los viewports. El cuadro grande no es un rectangulo, es un poligono, entoces escribo MVIEW enter, y despues escribo Polygonal y elijo los puntos del cuadro grande, dejando afuera el recuadro chiquito de la derecha. Vuelvo a escribir MVIEW y dibujo otro viewport esta vez rectangular, que es la opcion por defecto, y elijo el cuadrado de abajo a la derecha y me quedan dos viewports asi:


Ahora hacemos click en PAPER, en la BARRA gris, y nos pasa a MODEL. 
Aca elejimos la escala. 
Como tenemos dos Viewports, podemos tener dos escalas diferentes, una en cada viewport.  
Para elejir el viewport que vamos a manejar hacemos doble click en cualquier lugar adentro.  
Para el grande en una A3 me entra en escala 1:200, asi que elijo esa:


Fijense bien abajo a la derecha, donde habia un numero decimal ahora dice 1:200. Ahi pueden elejir la escala que quieran.

Ahora para el cuadro chiquito quiero mi detalle, asi que doble click en el viewport, y puedo hacer zoom para afuera y buscar mi detalle, hacer zoom devuelta y cuando mas o menos esta, le busco una escala que entre: 

Asi quedaria en 1:100, es demasiado grande, paso a 1:200


Dio la casualidad que los dos dibujos tienen la misma escala. 

Ahora vamos a plotear para llevar el PDF a imprimir.
Click derecho en el Layout, y vamos a poner plot

Y listo, ahi ponemos plotear y nos va a pedir a donde queremos guardar el PDF, elegimos y listo.


Ahora, puede que tengan diferencia entre las lineas punteadas del modelo y las lineas punteadas en la presentacion:

En el modelo por ejemplo a mi no se me ven punteadas pero si en la presentacion.

Lo que yo hago es: elijo la escala que quiero para mis lineas en el modelo con el comando LTSSCALE, generalmente es un numero bajo, menos de 1. Como 0,02 o 0,05 depende cuanta separacion uno quiera, 
y despues ponemos el comando PSLTSCALE y lo ponemos en 0.  Esto va hacer que el model y el layout tengan la misma escala de lineas. Si ya tenian todo hecho y no se les actualiza las lineas, tienen que meterse en el layout y ponerse en MODEL y una vez ahi darle al comando REGEN y REDRAW y listo.  

Espero q se haya entendido.



sábado, 2 de mayo de 2015

Técnica de croquis hecho por computadora, SKETCHUP + Photoshop. Saavedra A3

Bueno, como pueden ver en mi entrega de A2 final use el sketchup para hacer una especie de croquis a mano pero por computadora. Con el Sketchup se pueden hacer imagenes bastante buenas sin tener que matarse con el fotorealismo.

Ahora para una pequeña entrega de diseño tres hice un render con sketchup pero no es foto realismo.
La idea es con los estilos de sketchup hacer 3 imágenes y con fotoshop agregarle el cielo y retocarla un poco. De todas maneras renderizé para unas buenas sombras con un software gratis que se llama Kerkythea.

Aca las imágenes

Hidden Line sin color ni texturas

Con Xray


Un estilo de sketchup que no me acuerdo cual era-
Las texturas que le puse son todos colores con el balde, ninguna textura realista

El render sin texturas con Kerkythea

El resultado final con photoshop y todas las imagenes juntas.



Vale aclarar que todo incluyendo el modelado llevo aprox 1 hora. Es una forma muy rapida de obtener un dibjo aceptable en buena calidad. Sólo modele la parte de adelante del edificio porque solo me interesaba esta vista, si modelas todo podes hacer lo mismo con croquis de diferentes puntos de vista obviamente. 

De interiores no probe a ver si quedan copados. 

miércoles, 22 de abril de 2015

Arrancó Diseño 3

Finalmente arrancó diseño 3. Más o menos después de varias clases de juntar información de un terreno y definir nosotros el programa, tenemos que construir un edificio.  
Nos dan el terreno. Nosotros definimos todo lo demás, y por eso es necesario saber algunas cosas del código como para poder máximizar el rendimiento del espacio construible en este terreno que nos dieron:


Hay que saber cuantos departamentos vamos a poner, cuantos por planta, lados minimos para donde ventilan, patios internos o patios auxiliares, patios que conforman el espacio urbano, etc...



Algunas consideraciones a la hora de diseñar, de parte del código de edificación de la CABA


Tabla: Alturas mínimas de locales y distancias mínimas entre solados
Clase del
local
Altura libre
mínima del
local: h
Altuta mínima
entre solados: d
Exigibles en locales
Primera
2,60 m
2,80 m
Todos
Segunda
2,40 m
2,60 m
Cocina, guardarropa o vestuario colectivo, cuarto de costura o de planchar, local de descanso para personas con discapacidad o circunstancias discapacitantes
2,10 m
2,30 m
Cuarto de baño, retrete, orinal, lavadero.
Tercera
3,00 m
3,20 m
Todos
Cuarta
y
quinta
2,10 m
2,30 m
Hasta 16,00 m2.
2,40 m
2,60 m
Más de 16,00 m2
hasta 30,00 m2
2,60 m
2,80 m
Más de 30,00 m2
hasta 50,00 m2
3,00 m
3,20 m
Más de 50,00 m2
4.6.1.1 Criterio de la clasificación de locales
A los efectos de este Código, los locales se clasifican como sigue:
a.       Locales de primera clase:
Dormitorio, comedor, sala, sala común (living room), biblioteca, estudio, consultorio, escritorio, oficina y todo otro local habitable no clasificado de otro modo en este Código.
b.       Locales de segunda clase:
Cocina; cuarto de baño; retrete; orinal; lavadero; guardarropa o vestuario colectivo; cuarto de costura; cuarto de planchar; local de descanso para personas con discapacidad o con circunstancias discapacitantes, como complemento de servicio de salubridad público de uso determinado.
c.        Locales de tercera clase:
Local para comercio y/o trabajo, depósito comercial y/o industrial, vestuario colectivo en club y/o asociación, gimnasios y demás locales usados para practicar deporte, cocina de hotel, restaurante, casa de comida, comedor colectivo y similares;
d.       Locales de cuarta clase:
Pasaje, corredor, vestíbulo, salita de espera anexa a oficina o consultorio, guardarropa, cuarto de roperos y/o vestir anexo a dormitorio, tocador, despensa, antecomedor, espacio para cocinar, depósito no comercial ni industrial, depósito de no más de 250 m2 de área anexo o dependiente de local siempre que forme con este una sola unidad de uso y no tenga acceso directo desde la vía pública; pequeño comercio sin acceso de público a su interior; sala de cirugía, sala de rayos X; sala de micrófonos para grabación de discos o cintas magnéticas, laboratorio para
procesos fotográficos;
e.       Locales de quinta clase:
Locales auxiliares para servicios generales del edificio, como ser: portería, administración, cuarto de máquinas, dependencias del personal de servicio, salas comunes de juegos infantiles. Estos locales tendrán medios de salida entre pasajes y corredores generales o públicos y no directos sobre la vía pública.


f.        LOCAL DE:
Lado mínimo m
Area
mínima m2
Primera clase:


En vivienda colectiva del tipo transitorio (Hotel en cualquiera de sus denominaciones, casa de pensión) las habitaciones individuales tendrán
2,50
9,00



En casa de escritorios u oficinas
Locales individuales tendrán ...........................
3,00
12,00
Unidades de uso de dos o más locales, cada uno tendrá......................................................
2,50
9,00



En edificios de sanidad (Hospital, sanatorio, clínica, maternidad, preventorio) las salas individuales de internación tendrán........................
2,50
7,50



Tercera clase:....................................................... 3,00 16,00
3,00
16,00


b) El lado mínimo de los locales de primera clase en vivienda permanente se mide con exclusión de los armarios o roperos empotrados. La superficie mínima incluye armarios o roperos empotrados.
Locales de primera clase de vivienda permanente.
Locales
Lado mínimo

Sup. en m2
según Nº de dormitorios



1
2
3
4
Estar
3,00

-
11
14
16
Estar-comedor
3,00

16
16
20
20
Estar-comed.-dorm
3,00
20
-
-
-
-
Comedor
2,80

-
11
12
13
Dormitorio 1º
2,80

10
10
10
9
Dormitorio 2º (1)
2,30/2,50

-
8,60/9
9
9
Dormitorio 3º
2,30

-
-
7,6
8,6
Dormitorio 4º
2,00/2,30

-
-
-
7,0
Expansión terraza (2)
1,00
1,20
1,80
2,70
3,60
4,40

4.6.3.2 Areas y lados mínimos de las cocinas, espacios para cocinar, baños, retretes, lavaderos y secaderos (Texto s/Ord. 44.095 B.M. 18.717)
a) Cocinas: Una cocina debe tener un área mínima de 3,00 m2 y lado no inferior a 1,50 m;
 b) Espacios para cocinar: Un espacio para cocinar debe tener un área inferior a 3,00 m2. Sus lados responderán a la relación: b > 2a siendo a = profundidad que no rebasará de 1,25 m;
 c) Baños y retretes: Los baños y los retretes tendrán área y lados mínimos, de acuerdo con los artefactos que contengan. La ducha se instalará de modo que ningún artefacto se sitúe a menos de 0,25 m de la vertical del centro de la flor.
d) Disposiciones especiales en vivienda permanente: Cocina y lavadero - secadero podrán configurar un sólo local. Para ello el lado mínimo será de 1,50 m y la superficie mínima de la suma de ambos de acuerdo al cuadro.
 Cuando se proyecta baño de servicio, éste tendrá como lado mínimo 0,90 m y como superficie mínima 1,40 m2 y deberá tener ducha, inodoro y lavabo. El Departamento Ejecutivo podrá, si mediara informe favorable de las reparticiones técnicas competentes, autorizar una tolerancia máxima del 3% por sobre los valores numéricos determinados según las pautas y relaciones establecidas por normas del Código de Planeamiento Urbano. Lo precedente no será de aplicación en lo relativo de la linea de Frente Interno, Linea Municipal de Edificación, ni los Factores de Ocupación Total (FOT).
44
4.1.1 ESPACIO URBANO A los efectos de este Código se denomina así al espacio aéreo abierto capaz de garantizar buenas condiciones de habitabilidad en función de requerimientos ambientales de iluminación, ventilación, asoleamiento, acústica, privacidad, ángulo de visión del cielo, visuales exteriores, vegetación y otros elementos coadyuvantes del saneamiento ambiental.
 4.1.1.1 Funciones del Espacio Urbano (Ver I.O.) Los locales definidos en el Art. 4.6.1.0 del Código de la Edificación como de primera, tercera y quinta clase sólo podrán ventilar e iluminar al espacio urbano conformado según se especifica en los Parágrafos 4.1.1.2 y 4.1.1.3, salvo el 50% de los dormitorios en unidades de vivienda de 2 (dos) o más dormitorios, los que podrán ventilar e iluminar a “Patio Auxiliar”, cumpliendo las previsiones especiales previstas a tales efectos en el Art. 4.1.2; si el cociente no fuera un número entero se tomará el número entero inmediato inferior.
4.1.1.2 Conformación del Espacio Urbano Se considera como espacio urbano:
a) El espacio de vía pública comprendido entre Líneas Oficiales (L.O.) y el comprendido entre dichas líneas y las de retiro obligatorio o voluntario de la edificación. En el caso que el ancho de la vía pública varíe en la cuadra, se adoptará el valor promedio;
 b) El espacio libre de manzana;
c) El espacio entre paramentos laterales de los edificios de perímetro libre y semilibre y las líneas divisorias entre parcelas, conectado directamente con el espacio de vía pública y con el espacio libre de manzana;
 d) El espacio entre paramentos verticales correspondientes a un mismo o diferentes volúmenes edificados dentro de la misma parcela;
e) Los patios apendiculares que queden incorporados a alguno de los espacios anteriormente enumerados
4.1.2 PATIOS AUXILIARES (Ver I.O.) Se denominan así las áreas descubiertas ubicadas entre los volúmenes construidos en las parcelas, que por sus dimensiones no son aptas para conformar el espacio urbano. A tales patios pueden iluminar y ventilar los locales de las clases segunda y cuarta que se mencionan en el Art. 4.6.1.0 del Código de la Edificación, como así también los locales en las proporciones contempladas en el Parágrafo 4.1.1.1.
 4.1.2.1 Carácter y dimensiones de los patios auxiliares (Ver Figura N° 4.1.2.1)
 La altura de los paramentos en correspondencia con las líneas divisorias entre parcelas se considerará igual a la de los paramentos que los enfrentan. Se deberán cumplir las siguientes relaciones en función de la superficie mínima adoptada: a) Superficie mínima = 26m2 Lado mínimo = 4m Rp = h/d = 4; esta relación deberá verificarse en el sentido en el cual ventilen e iluminen los locales. (Ver I.O.)
 b) Para edificios que sean realizados por la Comisión Municipal de la Vivienda a través de sus distintas operatorias, con altura máxima de 9m a contar desde la cota de parcela: Superficie mínima = 16m2 Lado mínimo = 4m Por encima de dicha altura se permite la construcción de un nivel delimitado por una línea de 45° desde la altura de 9m hasta un plano límite de 12m.
4.1.2.2 Extensiones apendiculares en los patios auxiliares

 Se admiten extensiones apendiculares de los patios auxiliares para proporcionar iluminación y ventilación natural a los locales mencionados en el Art. 4.1.2 siempre que la distancia (d) desde el paramento en el cual se ubican los vanos que iluminen y ventilen por el patio hasta otro que lo enfrente, cumpla con lo establecido en el Parágrafo 4.1.2.1. La apertura (c) de unión con el patio debe ser igual o mayor que 2 veces la profundidad (p) de estas extensiones. Las superficies de las extensiones apendiculares no podrán computarse para satisfacer la superficie mínima del patio auxiliar, según se establece en el Parágrafo 4.1.2.1. (Ver Figura N° 4.1.2.2)